Mieszkanie na wynajem Kraków, Podgórze Duchackie, Wola Duchacka, Estońska

3 pokoje
56.00 m²
55,36 zł/m2
1 piętro
PLN-MW-8044

3 100 zł

Mieszkanie na wynajem

Szczegóły oferty

Symbol oferty PLN-MW-8044
Powierzchnia 56,00 m²
Powierzchnia balkonów/tarasów 2,50 m²
Liczba pokoi 3
Liczba sypialni 2
Rodzaj budynku blok
Technologia budowlana mieszana
Standard
Opłaty wg liczników gaz, prąd
Piętro 1
Liczba pięter w budynku 4
Garaż przy budynku
Stan lokalu do wprowadzenia
Okna PCV
Instalacje dobre
Balkon duży
Liczba balkonów 1
Rok budowy 1980
Widok na podwórko
Gaz jest
Woda ciepła - miejska
Dojazd asfalt
Ogrzewanie C.O. miejskie
Usytuowanie dwustronne
Drzwi antywłamaniowe tak
piwnica tak
Pomieszczenia
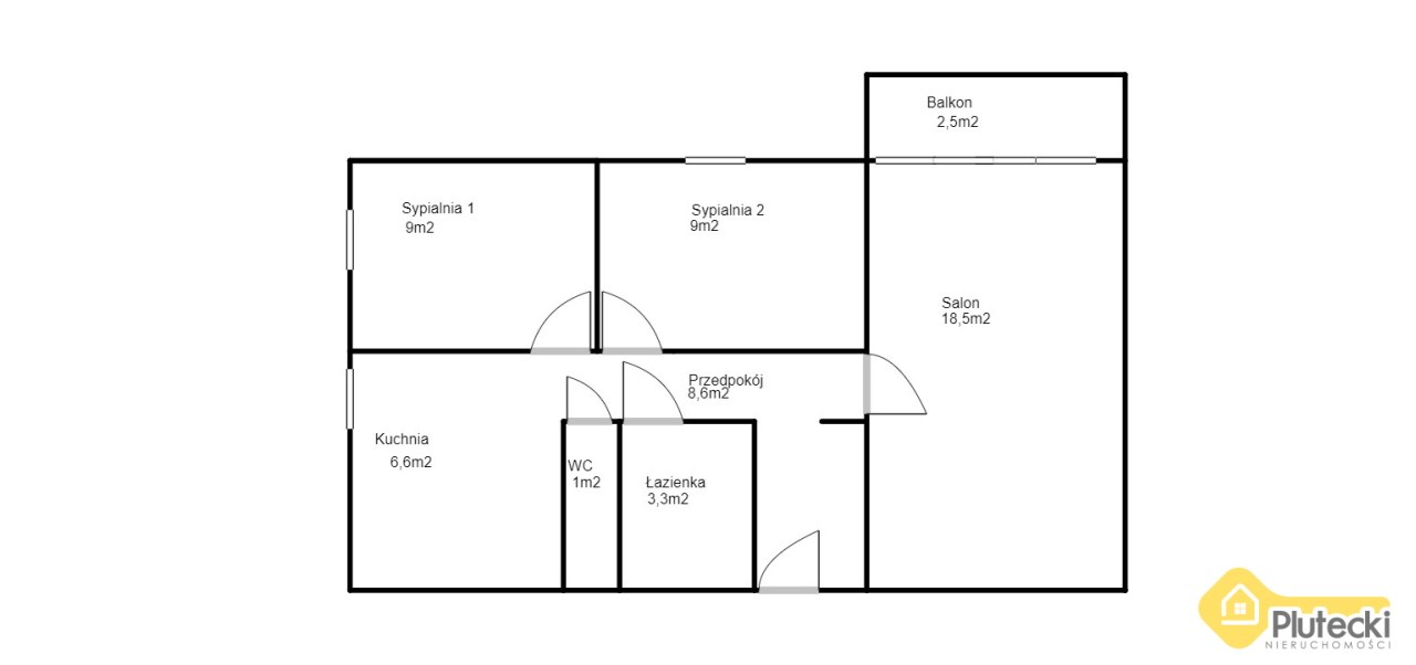
Powierzchnia pokoi 18,5; 9; 9 m2
Podłogi pokoi panele podłogowe
Typ kuchni oddzielna
Rodzaj kuchni jasna z oknem
Powierzchnia kuchni 6,6 m2
Podłoga kuchni płytki
Typ łazienki nowa
Liczba łazienek 1
Powierzchnia łazienki [m2] 3,3 m2
Glazura łazienki nowego typu
Podłoga łazienki płytki
Liczba WC 1
Powierzchnia WC 1 m2
Glazura WC nowego typu
Podłoga WC płytki
Liczba przedpokoi 1
Powierzchnia przedpokoi 8,6 m2
Podłoga przedpokoi płytki
Mateusz Suder

Mateusz Suder

Specjalista ds. nieruchomości

Napisz wiadomość 11 Ofert

Opis nieruchomości

Do wynajęcia mieszkanie 3-pokojowe o powierzchni 56m2 przy ul. Estońskiej.

Mieszkanie składa się z przestronnego salonu (18,5m2) z wyjściem na balkon (2,5m2)oddzielnej kuchni z oknem (6,6m2)dwóch przytulnych sypialni (9m2 każda), łazienki (3,3m2)toalety (1m2) oraz przedpokoju (8,6m2).

Lokalizacja na Woli Duchackiej przy ulicy Estońskiej w czteropiętrowym budynku, na pierwszym piętrze, gwarantuje wygodny dostęp do wielu udogodnień.

Mieszkanie jest wykończone, w pełni umeblowane i wyposażone.
Kuchnia z meblami w zabudowie i niezbędnymi urządzeniami: zmywarka, lodówka z zamrażarką, płyta gazowa, piekarnik, okap, stół/lada z krzesłami.
W salonie wygodna rozkładana sofa, stół, stolik kawowy.
Sypialni pierwsza z łóżkiem oraz szafą i komodą.
Sypialnia druga z łóżkiem, szafą i komodą.
Łazienka z kabina prysznicową, umywalką i pralką.

Lokalizacja na Woli Duchackiej przy ulicy Estońskiej w czteropiętrowym budynku, na pierwszym piętrze, gwarantuje wygodny dostęp do wielu udogodnień.

Opłaty:
3100 zł/mc
950 zł/mc - czynsz administracyjny (z zaliczkami na wodę, ogrzewanie, śmieci etc – zależny od ilości osób)
Prąd i gaz płatny wg zużycia
3000 zł - kaucja
Prowizja dla biura

Mieszkanie do wynajęcia od zaraz.

Jeśli ta oferta spełnia Twoje wymagania, to zachęcamy do kontaktu już dziś!

Zadzwoń do nas i umów się na wizytę, aby zobaczyć to piękne mieszkanie na własne oczy.

Lokalizacja nieruchomości

Podobne oferty

Nowa oferta

Mieszkanie na wynajem

Kraków, Podgórze Duchackie

2 pokoje 38 m2 67,11 zł/m2
Nowa oferta

Specjalista ds. nieruchomości

Proszę wprowadzić poprawne imię i nazwisko
Proszę wprowadzić poprawny numer telefonu
Proszę wprowadzić poprawny adres e-mail
Proszę zaznaczyć wymagane zgody
Rozwiąż równanie:
28 1
Niepoprawny wynik