Mieszkanie na sprzedaż Kraków, Bieżanów-Prokocim, Złocień, Agatowa

3 pokoje
52.77 m²
13 500,17 zł/m2
parter
PLN-MS-8972

712 404 zł

Mieszkanie na sprzedaż

Szczegóły oferty

Symbol oferty PLN-MS-8972
Powierzchnia 52,77 m²
Powierzchnia użytkowa [m2] 52,77 m²
Liczba pokoi 3
Liczba sypialni 2
Rodzaj budynku budynek wielorodzinny
Standard
Piętro parter
Liczba pięter w budynku 4
Stan lokalu deweloperski
Instalacje nowe
Balkon jest
Liczba balkonów 2
Rok budowy 2026
Widok na osiedle
Gaz brak
Woda ciepła - miejska
Dojazd asfalt
Otoczenie park
Ogrzewanie C.O. miejskie
Odległość do komunikacji publicznej [m] 150 m
Odl. do sklepu [m] 300 m
Odl. do szkoły [m] 150 m
Odl. do przedszkola [m] 100 m
Winda tak
Usytuowanie jednostronne
Pomieszczenia
Rodzaj kuchni aneks kuchenny - połączony z salonem
Mateusz Sas

Mateusz Sas

Młodszy Doradca ds. nieruchomości

Napisz wiadomość 11 Ofert

Opis nieruchomości

Prezentuję Państwu wyjątkowe mieszkanie w nowej inwestycji na krakowskim Złocieniu.

O nieruchomości:

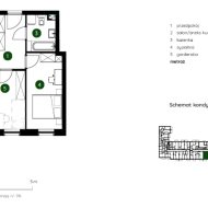
  • Powierzchnia: niemal 53 m2
  • Układ: 2 sypialnie, salon z aneksem kuchennym, łazienka, przedpokój
  • Taras z wyjściem z salonu
  • piętro: parter/4
  • Ekspozycja południowo-zachodnia- mieszkanie bardzo jasne!
  • Układ idealny dla rodziny 2+1 lub osób potrzebujących miejsca na gabinet
  • Możliwość zmian aranżacyjnych
Lokalizacja i inwestycja:
  • nowa inwestycja w dzielnicy Bieżanów- Prokocim
  • kameralne osiedle z własnym parkiem!
  • na osiedlu zewnętrzna siłownia, strefa relaksu
  • w pobliżu stacja PKP Kraków- Złocień, do tego szybki wjazd na A4 i S7
  • w sąsiedztwie pełna infrastruktura: sklepy (Biedronka, Stokrotka), CH ATUT, przystanki, przedszkola i szkoła podstawowa
  • Miejsca postojowe GRATIS!
To miejsce to idealna opcja dla wszystkich, którzy chcą mieszkać wśród zieleni, jednocześnie nie rezygnując z miejskich wygód.

Planowany termin realizacji: Koniec 2026 r.

Zapraszam do kontaktu po więcej informacji. W tej inwestycji mam więcej tego typu mieszkań!

Lokalizacja nieruchomości

Podobne oferty

Mieszkanie na sprzedaż

Kraków, Bieżanów-Prokocim

3 pokoje 46 m2 14 038,88 zł/m2

Mieszkanie na sprzedaż

Kraków, Bieżanów-Prokocim

2 pokoje 52 m2 13 377,99 zł/m2

Mieszkanie na sprzedaż

Kraków, Bieżanów-Prokocim

3 pokoje 54 m2 13 133,43 zł/m2

Mieszkanie na sprzedaż

Kraków, Bieżanów-Prokocim

2 pokoje 43 m2 14 893,65 zł/m2

Młodszy Doradca ds. nieruchomości

Proszę wprowadzić poprawne imię i nazwisko
Proszę wprowadzić poprawny numer telefonu
Proszę wprowadzić poprawny adres e-mail
Proszę zaznaczyć wymagane zgody
Rozwiąż równanie:
20 5
Niepoprawny wynik