Mieszkanie na sprzedaż Kraków, Bronowice, Gabrieli Zapolskiej

5 pokoi
148.00 m²
13 000,00 zł/m2
PLN-MS-8491

1 924 000 zł

Mieszkanie na sprzedaż

Szczegóły oferty

Symbol oferty PLN-MS-8491
Powierzchnia 148,00 m²
Liczba pokoi 5
Liczba sypialni 4
Rodzaj budynku szeregowiec
Technologia budowlana tradycyjna murowana
Standard
Liczba pięter w budynku 2
Garaż w bryle
Stan lokalu deweloperski
Okna aluminiowe
Instalacje nowe
Balkon jest
Liczba balkonów 1
Rok budowy 2026
Widok na osiedle
Gaz brak
Woda pompa
Dojazd asfalt
Otoczenie działki zabudowane
Ogrzewanie pompa ciepła
Umeblowanie nieumeblowane
Odległość do komunikacji publicznej [m] 150 m
Odl. do sklepu [m] 200 m
Odl. do szkoły [m] 1 000 m
Odl. do przedszkola [m] 350 m
Usytuowanie dwustronne
Drzwi antywłamaniowe tak
Pomieszczenia
Podłogi pokoi wylewka
Typ kuchni jasna z oknem
Rodzaj kuchni aneks kuchenny - połączony z jadalnią
Podłoga kuchni wylewka
Typ łazienki nowa
Liczba łazienek 2
Podłoga łazienki wylewka
Liczba przedpokoi 1
Podłoga przedpokoi wylewka
Krzysztof Plutecki

Krzysztof Plutecki

Właściciel, licencja nr 22458

Napisz wiadomość 68 Ofert

Opis nieruchomości

Prestiżowy, trzypoziomowy apartament z garażem i ogródkiem – Bronowice, Kraków

Szukasz komfortu domu i wygody miasta w jednym? Poznaj wyjątkowy apartament z prywatnym ogródkiem i garażem, położony w zielonym sercu Bronowic – jednej z najbardziej pożądanych dzielnic Krakowa.

Dlaczego warto?

  • 3 przestronne poziomy zapewniające prywatność i wygodę dla całej rodziny
  • Własny ogródek – idealny na poranną kawę, zabawę z dziećmi lub relaks po pracy
  • Garaż w bryle budynku – wygoda i bezpieczeństwo (dodatkowo płatny 119 000 zł)
  • Brak czynszu- mieszkasz jak w domu!

Doskonała lokalizacja

  • Zielona, spokojna okolica z niską zabudową jednorodzinną – cisza i spokój bez rezygnacji z miejskich udogodnień
  • Zaledwie 150 m do przystanku tramwajowego "Wesele" – dojazd do centrum w kilkanaście minut
  • W pobliżu: stacja SKA Bronowice oraz szybki dojazd do autostrady A4 i III obwodnicy – idealne połączenia z całym miastem i regionem

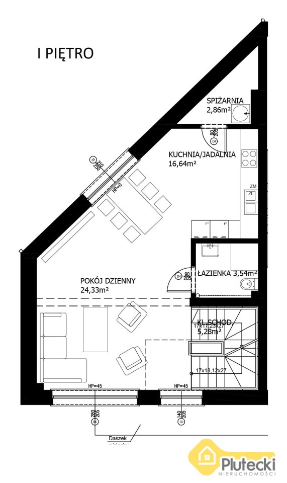
Układ apartamentu

Parter: garaż, pokój z wyjściem na ogród, łazienka, pomieszczenie gospodarcze.

Pierwsze piętro: przestronna kuchnia z jadalnią i strefą dzienną, spiżarnia, łazienka.

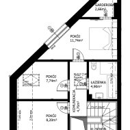
Drugie piętro: trzy jasne sypialnie, duża łazienka.

Całość zaprojektowana z myślą o maksymalnej funkcjonalności, wygodzie i prywatności.

Standard premium w cenie

  • Ogrzewanie podłogowe z energooszczędną pompą ciepła
  • Duże, aluminiowe okna – mnóstwo naturalnego światła
  • Wentylacja mechaniczna z rekuperacją – świeże powietrze przez cały rok
  • Instalacja pod klimatyzację
  • Wylewki cementowe i gładkie tynki – gotowe do wykończenia według własnego stylu

Termin oddania: I kwartał 2026

W ofercie dostępne są również inne apartamenty – zadzwoń do nas po więcej szczegółów!
 

Lokalizacja nieruchomości

Właściciel, licencja nr 22458

Proszę wprowadzić poprawne imię i nazwisko
Proszę wprowadzić poprawny numer telefonu
Proszę wprowadzić poprawny adres e-mail
Proszę zaznaczyć wymagane zgody
Rozwiąż równanie:
29 1
Niepoprawny wynik